Free account required
17
Free account required
$2,150 Rent
Listed 1 day
206 King Street W, #711
· 1
· 1
· 0
· 500-599
Listing History
Buy/Sell/Terminated/Expired listing history for 206 King Street W, #711
Key Facts
Key facts for 206 King Street W, #711
Property Type
Condo, Apartment
Parking
Other 0 garage, 0 parking
MLS #
X12468961
Size
500-599 sqft
Basement
None
Listed on
2025-10-17
Lot size
-
Tax
-
Days on Market
2
Approximate Age
-
Maintenance Fee
- Common Elements
Description
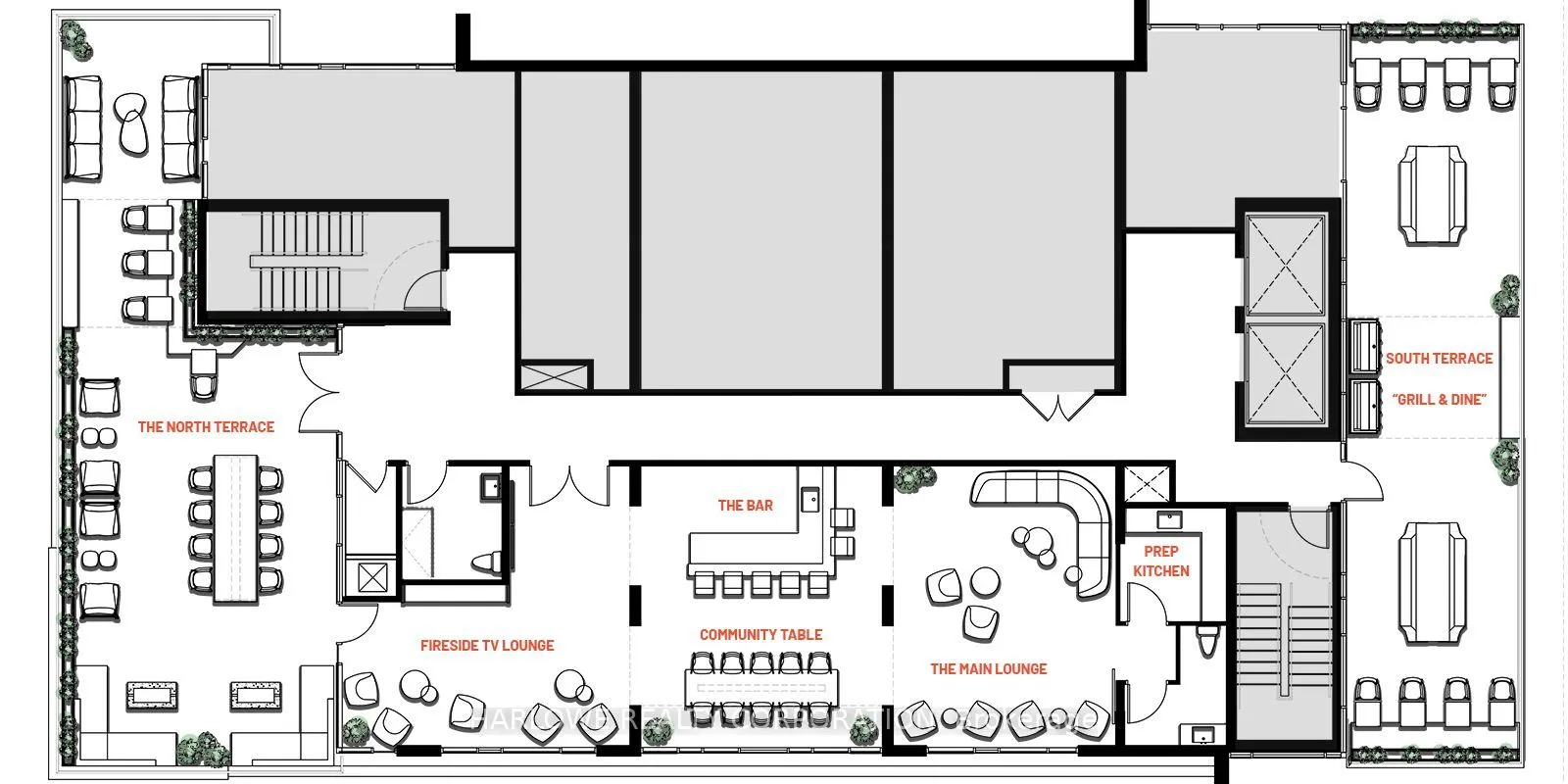
Experience urban living at Radio Arts! This 1 bed, 1 bath unit faces east with a terrace balcony. Enjoy amenities like Co-Work & Wi-Fi Lounge, Full sized Gym, Penthouse Social Lounge with fireplace & rooftop terraces with BBQ area. Smart home features include smart locks & thermostats. Located near... future LRT, transit, shops, restaurants & Highway 403. Perfect for those seeking a modern, connected lifestyle in downtown Hamilton's vibrant neighborhood.
Similar Properties (No results)
Courtesy of: HARLOWE REALTY CORPORATION